X

Precast Modelling And Detailing

Who We are and what we do

At American Rebar, we deliver high-accuracy Precast Modelling and Detailing services that support efficient fabrication, seamless installation, and reliable structural performance. Our team specializes in transforming complex precast designs into clear, constructible, and shop-ready drawings that reduce errors, save time, and control project costs.

We work closely with structural engineers, precast manufacturers, and contractors to ensure every element is detailed with precision, clarity, and full compliance with applicable industry standards.

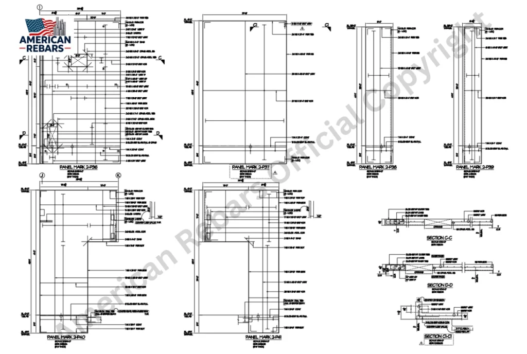
Comprehensive Precast Modelling Expertise

Our precast modelling services focus on creating intelligent 3D models that reflect real-world fabrication and erection requirements. Using advanced BIM tools, we develop coordinated precast models that improve communication, detect clashes early, and streamline production workflows.

From conceptual modelling to final shop drawings, our solutions help stakeholders visualize, plan, and execute precast projects with confidence.

Precast Detailing Services We Offer

American Rebar delivers comprehensive, end-to-end precast detailing services covering precast wall panels and façade elements, beams, columns, slabs, and both architectural and structural precast components. Our scope also includes precise connection and embed detailing, reinforcement layouts, bar bending schedules, and detailed erection and lifting drawings. Every drawing is developed with constructability as a priority, ensuring accuracy, efficiency, and seamless coordination from manufacturing through on-site installation.

BIM-Driven Precast Modelling

Our BIM-based precast modelling approach enhances coordination across disciplines. We create detailed 3D models that integrate reinforcement, connections, embeds, and inserts, enabling early clash detection and design optimization.

By leveraging BIM, we help clients minimize rework, improve schedule predictability, and achieve higher overall project efficiency.

Compliance with Industry Standards

All our precast modelling and detailing services comply with relevant international and regional standards, including:

  1. 1. ACI and PCI guidelines
  2. 2. ASTM specifications
  3. 3. Project-specific structural codes
  4. 4. Client and fabricator requirements
  5. 5. Clash free 3D rebar modeling

This ensures that every deliverable meets quality, safety, and regulatory expectations.

Benefits of Choosing American Rebar

  1. 1. Highly accurate, shop-ready precast drawings
  2. 2. Reduced fabrication and erection errors
  3. 3. Improved coordination between design and a construction teams
  4. 4. Faster production cycles and installation timelines
  5. 5. Cost-effective solutions without compromising quality

Our experienced team ensures precision at every stage of the precast workflow.

Types of Structures We Detailing​

Foundations And Footings

foundations-and-footings-a

We deliver precise rebar detailing for stable foundations and footings ensuring long-term structural integrity.

Grade & Elevated Slabs

slabs-on-grade-and-elevated-slabs

Accurate slab reinforcement detailing optimized for load distribution, crack control, and construction efficiency.

Beams And Columns

beams-and-columns-grade-beam

Detailed reinforcement layouts for beams and columns ensuring strength, continuity, and code-compliant structural performance.

Retaining Walls

retaining-walls

Engineered rebar detailing for retaining walls designed to resist soil pressure and environmental forces.

Shear Walls And Core Walls

shear-walls-and-core-walls

High-accuracy detailing for shear and core walls enhancing lateral stability and seismic resistance.

Precast Concrete Elements

precast-concrete-elements

Comprehensive rebar detailing supporting efficient fabrication, transportation, and installation of precast components.

Bridges Components

bridges-and-infrastructure-components-a

Specialized reinforcement detailing for bridge components ensuring durability, load capacity, and regulatory compliance.

Infrastructure Components

bridges-and-infrastructure-components-b

Expert rebar detailing for infrastructure components supporting long-term performance and public safety requirements.

Advanced Tools & Technology

We use industry-leading detailing and BIM software to deliver precise and coordinated outputs, including: 1. Revit Structure, 2. Tekla Structures, 3. AutoCAD, 4. Navisworks (for clash detection).

3D rebar modeling helps identify conflicts early, improves coordination with other trades, and enhances overall construction efficiency.

Code Compliance & Quality Control

Quality and compliance are central to our rebar detailing process. Every project is checked against: 1. Structural design drawings, 2. Applicable building codes and standards, 3. Client specifications and project requirements.

Our internal quality checks ensure error-free drawings that support smooth fabrication and installation.

Why Choose American Rebar for Rebar Detailing?

With proven expertise in precast detailing and BIM modelling, American Rebar is a trusted partner for delivering technically sound, efficient, and buildable precast solutions. Our commitment to accuracy, coordination, and timely delivery helps clients achieve successful project outcomes.

Accuracy You Can Trust:

Our detailers focus on precision, ensuring reinforcement layouts match structural intent and site requirements.

Construction-Friendly Drawings:

We prepare clear, easy-to-follow drawings that simplify on-site execution and reduce misinterpretation.

Timely Delivery:

We understand project deadlines and deliver drawings on schedule without compromising quality.

Experienced Team:

Our skilled detailers bring hands-on industry knowledge across commercial, residential, and infrastructure projects.

Scalable Support:

From small residential projects to large infrastructure developments, we scale our services to match your needs.

Industries We Serve

Commercial Construction

Office Building (Tilt-Up Panel)

Residential Developments

High-Rise Building (Slab, Beam, Column, Precast and RC Wall)

Industrial Facilities

Workshop & Office Building (Precast Panel)

Infrastructure And Transportation

Bridge (Precast Deck Panel, Headstock & Abutment Wall

Precast Concrete Manufacturers

Warehouse & Office Building (Tilt-Up Panel)

Engineering And Consulting Firms

Engineering And Consulting Firms