X

Rebar Estimation And Scheduling

Who We are and what we do

At American Rebar, we provide accurate and reliable Rebar Estimation and Scheduling services that help contractors, engineers, and fabricators control costs, reduce material waste, and maintain efficient construction timelines. Our detailed quantity takeoffs and reinforcement schedules are developed with precision to support confident bidding and smooth project execution.

By combining technical expertise with advanced estimating tools, we deliver dependable data that drives informed decision-making throughout the project lifecycle.

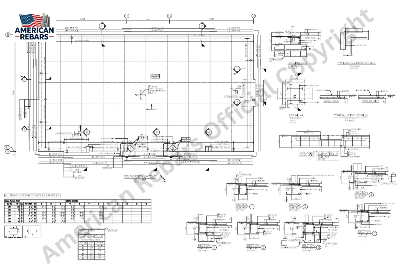
Accurate Rebar Quantity Takeoffs

Our rebar estimation services focus on producing precise material takeoffs based on approved structural drawings and project specifications. We carefully analyze each element to calculate reinforcement quantities, sizes, grades, and weights with high accuracy.

This level of detail helps clients avoid over-ordering, minimize waste, and eliminate costly surprises during construction.

Comprehensive Rebar Scheduling Solutions

American Rebar develops clear and well-organized rebar schedules that align with fabrication and site requirements. Our schedules include bar marks, diameters, shapes, lengths, bending details, and quantities, ensuring seamless coordination between detailing, fabrication, and installation teams.

These schedules support efficient procurement and timely material delivery.

BIM-Driven Estimation and Scheduling

We utilize advanced BIM and rebar detailing software to enhance accuracy and coordination. By integrating estimation and scheduling with 3D reinforcement models, we identify discrepancies early and improve consistency across drawings, schedules, and quantities.

This digital approach reduces errors and improves overall project efficiency.

Support for Bidding and Construction Planning

Our rebar estimation services are ideal for both pre-bid and post-award phases. We support contractors and fabricators with reliable estimates that strengthen bid competitiveness and assist project teams with construction planning once contracts are awarded.

Our deliverables help teams stay on budget and on schedule.

Standards and Quality Compliance

All rebar estimation and scheduling outputs are prepared in accordance with applicable industry standards and project requirements, including:

  1. 1. ACI and ASTM specifications
  2. 2. Project-specific structural codes
  3. 3. Client and fabrication standards

This ensures accuracy, compliance, and acceptance across all stakeholders.

Key Benefits of Our Services

  1. 1. Highly accurate rebar quantity takeoff
  2. 2. Clear and constructible rebar schedules
  3. 3. Reduced material waste and cost overruns
  4. 4. Improved coordination between teams
  5. 5. Faster procurement and construction workflows

Our services add clarity and confidence to every project stage.

Types of Structures We Detailing

Foundations And Footings

foundations-and-footings-a

We deliver precise rebar detailing for stable foundations and footings ensuring long-term structural integrity.

Grade & Elevated Slabs

slabs-on-grade-and-elevated-slabs

Accurate slab reinforcement detailing optimized for load distribution, crack control, and construction efficiency.

Beams And Columns

beams-and-columns-grade-beam

Detailed reinforcement layouts for beams and columns ensuring strength, continuity, and code-compliant structural performance.

Retaining Walls

retaining-walls

Engineered rebar detailing for retaining walls designed to resist soil pressure and environmental forces.

Shear Walls And Core Walls

shear-walls-and-core-walls

High-accuracy detailing for shear and core walls enhancing lateral stability and seismic resistance.

Precast Concrete Elements

precast-concrete-elements

Comprehensive rebar detailing supporting efficient fabrication, transportation, and installation of precast components.

Bridges Components

bridges-and-infrastructure-components-a

Specialized reinforcement detailing for bridge components ensuring durability, load capacity, and regulatory compliance.

Infrastructure Components

bridges-and-infrastructure-components-b

Expert rebar detailing for infrastructure components supporting long-term performance and public safety requirements.

Advanced Tools & Technology

We use industry-leading detailing and BIM software to deliver precise and coordinated outputs, including: 1. Revit Structure, 2. Tekla Structures, 3. AutoCAD, 4. Navisworks (for clash detection).

3D rebar modeling helps identify conflicts early, improves coordination with other trades, and enhances overall construction efficiency.

Code Compliance & Quality Control

Quality and compliance are central to our rebar detailing process. Every project is checked against: 1. Structural design drawings, 2. Applicable building codes and standards, 3. Client specifications and project requirements.

Our internal quality checks ensure error-free drawings that support smooth fabrication and installation.

Why Choose American Rebar for Rebar Detailing?

American Rebar combines technical expertise, industry knowledge, and a detail-driven approach to deliver dependable Rebar Estimation and Scheduling services. Our commitment to accuracy, transparency, and timely delivery makes us a trusted partner for construction professionals across the industry.

Accuracy You Can Trust:

Our detailers focus on precision, ensuring reinforcement layouts match structural intent and site requirements.

Construction-Friendly Drawings:

We prepare clear, easy-to-follow drawings that simplify on-site execution and reduce misinterpretation.

Timely Delivery:

We understand project deadlines and deliver drawings on schedule without compromising quality.

Experienced Team:

Our skilled detailers bring hands-on industry knowledge across commercial, residential, and infrastructure projects.

Scalable Support:

From small residential projects to large infrastructure developments, we scale our services to match your needs.

Industries We Serve

Commercial Construction

Office Building (Tilt-Up Panel)

Residential Developments

High-Rise Building (Slab, Beam, Column, Precast and RC Wall)

Industrial Facilities

Workshop & Office Building (Precast Panel)

Infrastructure And Transportation

Bridge (Precast Deck Panel, Headstock & Abutment Wall

Precast Concrete Manufacturers

Warehouse & Office Building (Tilt-Up Panel)

Engineering And Consulting Firms

Engineering And Consulting Firms